层 数 | 结构形式 | 建筑风格 | |||
开 间 |
10.00m
|
占地面积 |
120.00㎡
|
建筑面积 |
433.90㎡
|
进 深 |
12.00m
|
主体造价 |
56万~70万(仅供参考)
|
制作软件 |
AutoCAD
|
图纸内容
|
|||
建筑图
|
建筑设计说明,构造表,一层平面图,二层平面图,三层平面图,四层平面图闷顶层平面,屋顶层平面图,立面图,剖面图,楼梯平面详图,节点详图,墙身大样图,门窗大样图,门窗表
|
||
结构图
|
结构设计说明,基础大样图,基础施工图,基础顶~屋顶柱施工图,一层结构施工图,二层结构施工图,三层结构施工图,四层结构施工图,屋顶层施工图,大样图。
|
||
给排水图
|
给排水设计说明,一层给排水平面图,二层给排水平面图,三层给排水平面图,四层给排水平面图,屋顶层排水平面图,给排水系统原理图,卫生间给排水详图,化粪池大样图,污水检查井大样图。
|
||
电气图
|
电气设计说明,电气设计说明,主要设备及材料表,配电箱系统图,弱电系统图,一层照明平面图,二层照明平面图,三层照明平面图,四层照明平面图,一层插座平面图,二层插座平面图,三层插座平面图,四层插座平面图,一层弱电平面图,二层弱电平面图,三层弱电平面图,四层弱电平面图,屋面防雷平面图。
|
||
设计功能
|
|||
一层
|
玄关,客厅,餐厅,楼梯,卧室,公卫
|
||
二层
|
2卧室,内卫,公卫,楼梯,阳台
|
||
三层
|
3卧室,2内卫,公卫,楼梯,书房,阳台
|
||
四层
|
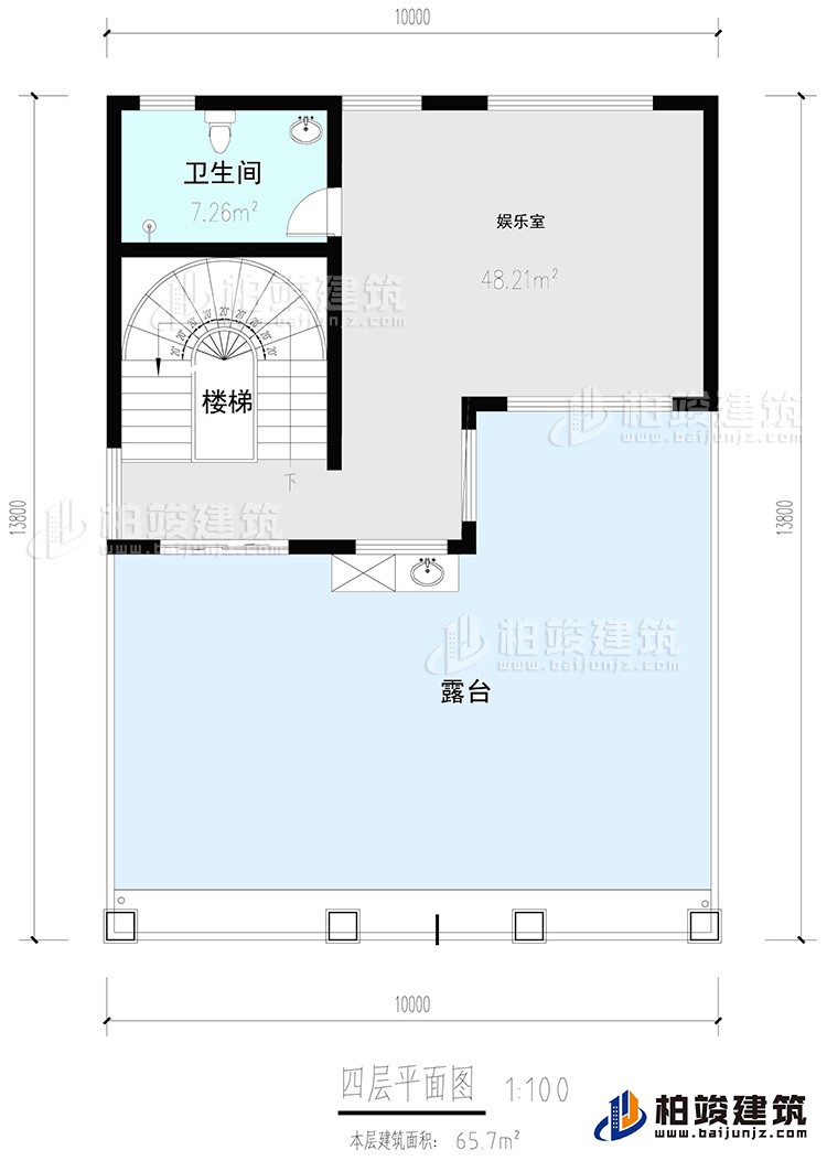
娱乐室,公卫,楼梯,露台
|
湖南柏竣建筑工程:没有任何评论
请您在下订单前与在线客服确认配送范围。
您在本站订购的图纸,我们客服人员会电话与您联系确认图纸编号、收货信息等, 感谢您对本站的关注,祝您网上购物愉快!
购图前重要说明:
购买本套图纸仅提供打印好的图纸一份,我们不出售电子文件、光盘。我们设计的图纸非常详细,用A3规格打印图纸,比传统蓝图更清晰、容易复印、方便收藏,可以直接应用到施工现场。售后服务仅为图纸答疑,不包任何修改,因为只要其中一张图纸改变,其它图纸相应均需修改,工作量较大,所以我们不包修改。如果您个性要求较多需按要求订做设计,请查看别墅设计业务流程,并联系设计客服咨询设计收费标准。